Harrasallee Braunsdorf

Einfamilienhäuser

Referenzbeispiel

09577 Braunsdorf Harrasallee 7

Das Aktivsonnenhaus ist das erste bezahlbare Ganzjahressolarhaus ohne Öl-, Gas- oder Wärmepumpenheizung. Es ist die neue Generation – das solare Bauen. Durch das intelligente Zusammenspiel aus Solararchitektur, Solarthermieanlage, Langzeitsolarspeicher und massiven Baustoffen werden bis zu 100% des Wärmebedarfs für Heizung und Warmwasser durch Solarenergie gedeckt.

Die Solararchitektur integriert die persönlichen Bedürfnisse der Bauherren. Jedes Gebäude wird standortbezogen und nach den individuellen Wünschen geplant, dimensioniert und schlüsselfertig gebaut. Darüber hinaus bereitet das Aktivsonnenhaus nicht nur Freude durch geringe Nebenkosten, sondern ist zugleich nahezu CO2-neutral, ökologisch sinnvoll und enkelgerecht obendrein.

Presseberichte

Erfahrungsberichte unserer Kunden

Rahmendaten

Das Grundstück

Das Gesamtgrundstück (Flurstücks-Nr. 105h) hat eine Gesamtgröße von ca. 2190 m². Dieses wird in drei Grundstücke aufgeteilt für den Bau von zwei Aktivsonnenhaus-Einfamilienhäusern und einem -Mehrfamilienhaus mit 4 Eigentumswohnungen. Seit Kurzem liegt der positive Bauvorbescheid für die auf dem Lageplan abgebildete Bebauungsidee vor. Sämtliche Medien, ausgenommen Gas, liegen am Grundstück an bzw. werden herangeführt.

 
Lageplan
Referenzbeispiel

Baubeginn 2023

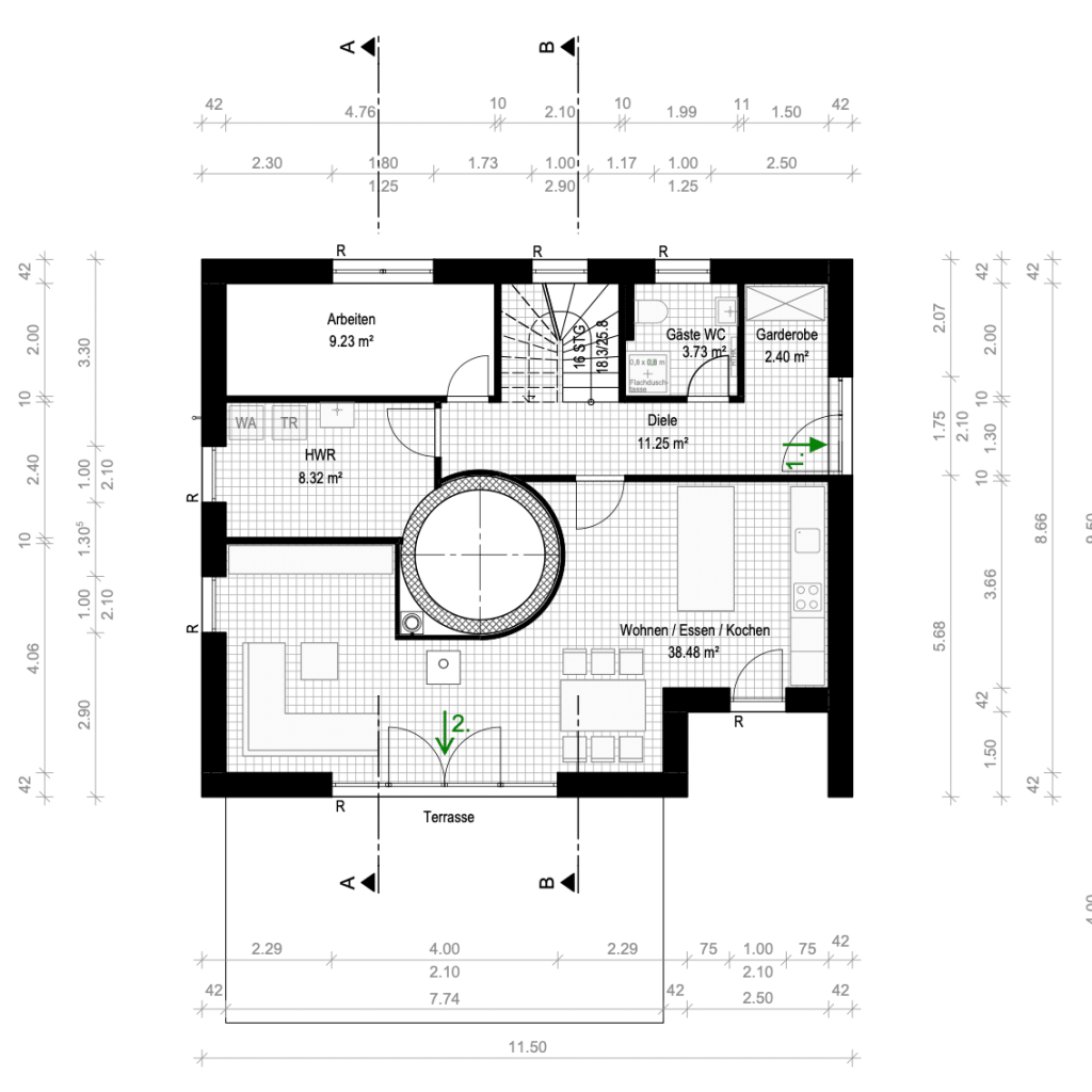
Beispielentwurf Erdgeschoss
Beispielentwurf Erdgeschoss
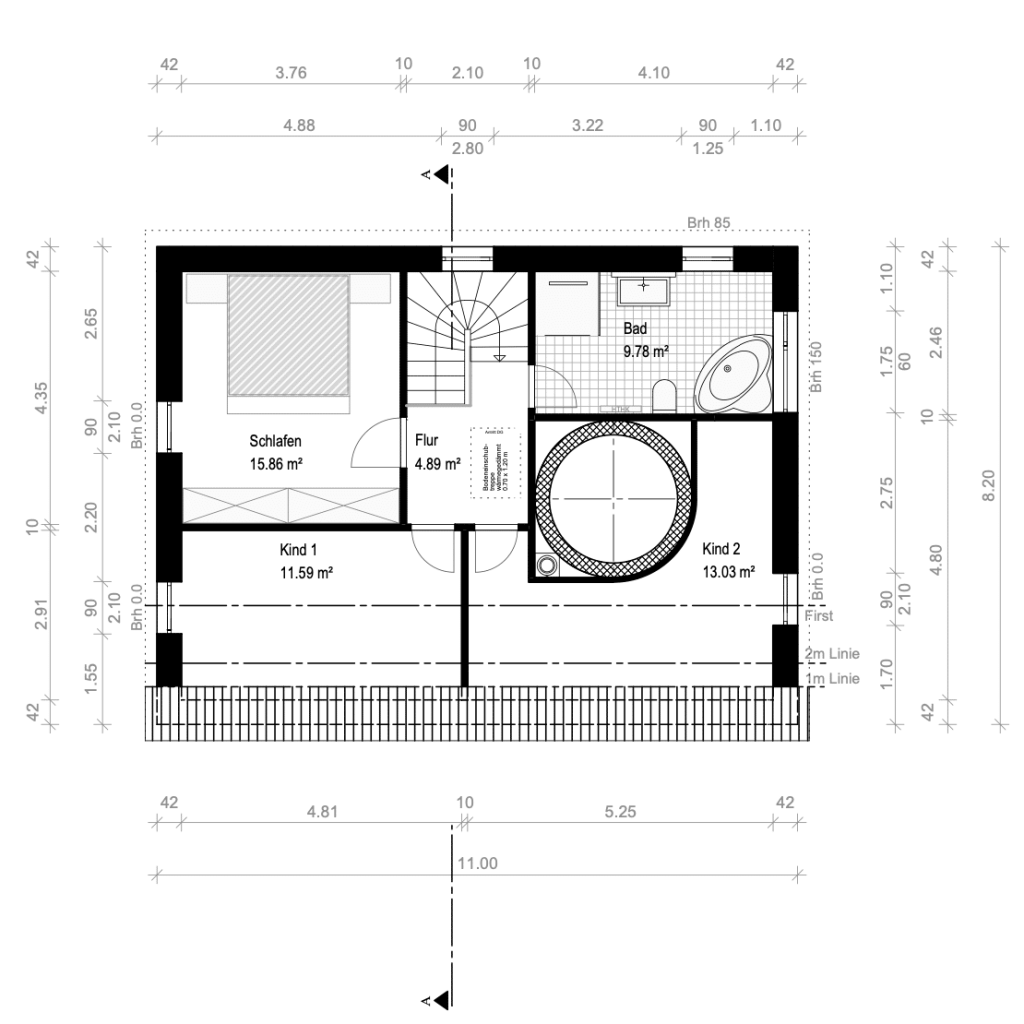
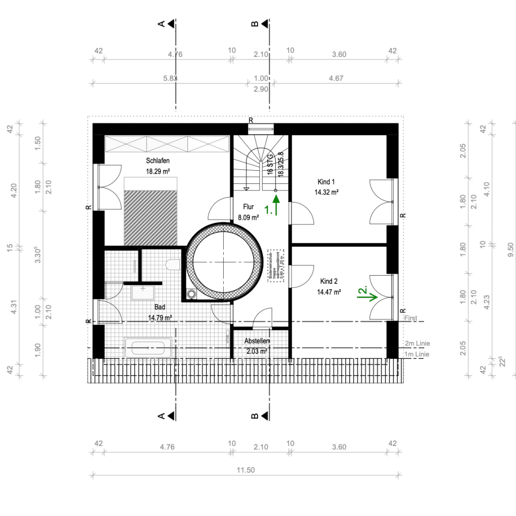
Beispielentwurf Dachgeschoss
Beispielentwurf Dachgeschoss
Beispielentwurf Schnitt
Beispielentwurf Schnitt

LAGE

Braunsdorf ist ca. 3 km in östliche Richtung vor Chemnitz gelegen. Die Anbindung zur Stadt ist mit dem PKW in wenigen Minuten über die B169 gewährleistet. Die Autobahn nach Berlin, Dresden, Leipzig, Hof und Frankfurt ist nur 3 km entfernt und bietet einen optimalen Anschluss an das überregionale Verkehrsnetz. Einen Anschluss an den öffentlichen Nahverkehr bietet der Bahnhof Braunsdorf mit der Chemnitzer City-Bahn C15 und der Buslinie 706. Einkaufszentren (Oli-Park & Sachsen-Allee) befinden sich unweit. Gastronomische Einrichtungen befinden sich direkt in Braunsdorf sowie entlang der Schlossallee in Lichtenwalde mit Rittergut und Schloss Lichtenwalde, einem bei Touristen beliebten Ausflugsziel und Kulisse für kulturelle Veranstaltungen über das gesamte Jahr!

Sie sehen gerade einen Platzhalterinhalt von Google Maps. Um auf den eigentlichen Inhalt zuzugreifen, klicken Sie auf die Schaltfläche unten. Bitte beachten Sie, dass dabei Daten an Drittanbieter weitergegeben werden.

Mehr Informationen

Kontakt

Projekte Kontaktformular

Ihr Ansprechpartner

René Krauss

Projekt- / Bauberater

Telefon: +49 (0) 371 / 46112 – 112
Telefax: +49 (0) 371 / 46112 – 270

Mobil: +49 (0) 152/020 859 86

E-Mail: krauss@fasa-ag.de

Erreichbar:
Mo – Fr: 9 – 18 Uhr

Beginnen Sie mit der Eingabe und drücken Sie Enter, um zu suchen