Chemnitz • Fertigstellung Sommer 2026

Solardomizil V

Visualisierung Solardomizil V

09113 Chemnitz, Ludwigstraße 35

Solares Bauen in Chemnitz – der europäischen Kulturhauptstadt 2025. In Schloßchemnitz, dem beliebtesten innerstädtischen und dennoch grünen Stadtteil von Chemnitz, entsteht das Solardomizil V. Die moderne Solararchitektur bietet nicht nur lichtdurchflutete Wohnungen sondern versorgt das Gebäude mit bis zu 100% erneuerbarer Energie. Daraus resultiert ein behagliches, nachhaltiges und entspanntes Wohngefühl im urbanen Raum. Gleichzeitig bildet dieses innovative Konzept die Zukunftsfähigkeit und Werthaltigkeit jeder einzelnen Wohnung in hervorragender Weise ab.

Sie sehen gerade einen Platzhalterinhalt von YouTube. Um auf den eigentlichen Inhalt zuzugreifen, klicken Sie auf die Schaltfläche unten. Bitte beachten Sie, dass dabei Daten an Drittanbieter weitergegeben werden.

Mehr Informationen

Sie sehen gerade einen Platzhalterinhalt von YouTube. Um auf den eigentlichen Inhalt zuzugreifen, klicken Sie auf die Schaltfläche unten. Bitte beachten Sie, dass dabei Daten an Drittanbieter weitergegeben werden.

Mehr Informationen

Aktueller Baustand

Baustand Mai 2025
Speichersetzung
November 2024
Speichersetzung
November 2024

Rahmendaten

Ausstattung

Planungsansicht Südost
Planungsansicht Nordost
Grundriss 2. Obergeschoss
Planungsansicht Südwest
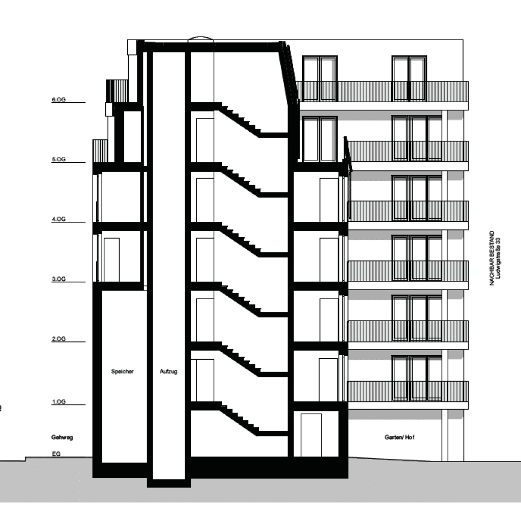
Planungsansicht Schnitt
Grundriss Penthouse-Geschoss

Besonderheiten

Auf dem altehrwürdigen Schloßberg, in Blickweite zum Küchwald, entsteht auf einem Eckgrundstück das Solardomizil V. Eingebettet zwischen Gründerzeithäuser wird das Solardomizil V mit seiner geschwungenen und architektonisch anspruchsvollen modernen Fassade ein echter Hingucker.

Highlight der Wohnanlage ist das Solarpaket zusammen mit einer Wärmepumpenkomponente, so dass auf Öl, Gas und Fernwärme als Zusatzheizung verzichtet werden kann. Die Kosten für Wärmeenergie werden somit auf ein Minimum reduziert. Geniale Aussichten für Mieter und Eigentümer und der Beleg, dass bereits heute mit innovativen solaren Konzepten nachhaltige Gebäude möglich sind, die den Forderungen der Politik sogar vorauseilen.

Das Gebäude wird in Massivbauweise errichtet. Alle Wohnungen verfügen fast ausnahmslos über bodentiefe Fensterfronten für helle Räume. Jede Wohnung erhält mindestens einen Balkon, Loggia oder Dachterrasse. Vom Parksystem und den großzügigen Abstellräumen im Erdgeschoss geht es über den Lift und das Treppenhaus in die Wohnungsetagen. Die Wohnungen selbst haben eine gehobene Ausstattung, u.a. mit Fußbodenheizung, Parkett, z.T. mit Bad und separatem Dusch-/Gäste-WC. Im Bauablauf können vereinzelte Ausbaugewerke noch eigenständig bemustert werden.

Referenzobjekt Solardomizil I
Referenzobjekt Solardomizil II
Referenzobjekt Solardomizil I & II
Referenzobjekt Solardomizil III
Referenzobjekt Solardomizil IV

LAGE

Innerstädtisches Wohnen trifft unseren Zeitgeist und steht für ein ganz besonderes Lebensgefühl: Das Umfeld ist lebendig, die Freizeitmöglichkeiten sind vielfältig und abwechslungsreich sowie die Wege zur Arbeit und zu Freunden sind kurz. Diesen bundesweiten Trend kann man auch in Chemnitz, der europäischen Kulturhautstadt 2025, beobachten.

Zentrumsnahe Baugrundstücke in guter Lage sind so kaum noch vorhanden. Eine der wenigen Möglichkeiten bietet sich für Interessenten derzeit noch auf der Ludwigstraße / Ecke Dorotheenstraße im beliebten innerstädtischen Wohnviertel Schloßchemnitz.

Die Nähe zum Küchwaldpark, dem Concordia-Park, dem Schlosspark und dem Schloßteich gestalten das Wohnumfeld mit sehr viel Grün bei gleichzeitiger Nähe zur Innenstadt. Geschäfte des täglichen Bedarfs, ärztliche Nahversorgung, ÖPNV sowie Schulen und Kindertageseinrichtungen sind fußläufig zu erreichen, ebenso gastronomische und kulturelle Einrichtungen durch die direkt angrenzende Innenstadt.

Eine schnelle Anbindung in ca. 5 Minuten an den überregionalen Verkehr durch BAB Anschlussstelle Chemnitz-Mitte (A4, A72) macht den Standort auch für Vielfahrer sehr interessant.

Sie sehen gerade einen Platzhalterinhalt von Google Maps. Um auf den eigentlichen Inhalt zuzugreifen, klicken Sie auf die Schaltfläche unten. Bitte beachten Sie, dass dabei Daten an Drittanbieter weitergegeben werden.

Mehr Informationen

Kontakt

Projekte Kontaktformular

Ihr Ansprechpartner

René Krauss

Projekt- / Bauberater

Telefon: +49 (0) 371 / 46112 – 112
Telefax: +49 (0) 371 / 46112 – 270

Mobil: +49 (0) 152/020 859 86

E-Mail: krauss@fasa-ag.de

Erreichbar:
Mo – Fr: 9 – 18 Uhr

Beginnen Sie mit der Eingabe und drücken Sie Enter, um zu suchen