Chemnitz • Fertiggestellt

Solarturm an der Chemnitz

09111 Chemnitz, Schlossstraße 26

Der Wunsch nach zentralem Wohnen hat in den letzten Jahren deutlich zugenommen und dem tragen wir mit unserem neuen Projekt – dem Solarturm an der Chemnitz – Rechnung. In der Schlossstraße 26 in Chemnitz – direkt neben unserem im Jahr 2015 bereits errichteten Projekt der Chemnitz-Terrassen – entsteht eine kleine Eigentumswohnanlage direkt am Fluss – der Chemnitz – (hochwassersicher).

Sie sehen gerade einen Platzhalterinhalt von YouTube. Um auf den eigentlichen Inhalt zuzugreifen, klicken Sie auf die Schaltfläche unten. Bitte beachten Sie, dass dabei Daten an Drittanbieter weitergegeben werden.

Mehr Informationen
Nord-Ansicht
Eingang
Süd-Ost-Ansicht

Presseberichte

Rahmendaten

Ausstattung

Die moderne Architektur bildet einen Leuchtturm für solares Bauen in urbaner Umgebung. Die Ausstattung (Fußbodenheizung, Parkett, ebenerdige Duschen, Bidet, … ) sowie verschiedene Wahlmöglichkeiten bei der Innengestaltung reichen von sehr gut bis exzellent. Die hier beschriebene Wohnung-Nr. 4 ist eine 5-Raum-Wohnung im 3. Obergeschoss mit ca. 165m² Wohnfläche. Die Wohnung verfügt über drei Kinder- bzw. Arbeits-/Gästezimmer mit eigenem Duschbad inkl. Doppelwaschtisch, einem kleinem Hauswirtschafstraum sowie zur Gartenseite ein Schlafzimmer mit integriertem Bad und Zugang zum Balkon und einen offenen, großzügigen Wohn- sowie Küchenbereich (beides mit Zugang mit Zugang zum flussseitig ausgerichteten großen Balkon. Der Wohnung ist ein Tiefgaragenstellplatz sowie Abstellraum zugeordnet werden. Alle Wohnungen sind bereits verkauft bzw. vermietet.

Süd-West-Ansicht
Süd-Ost-Ansicht
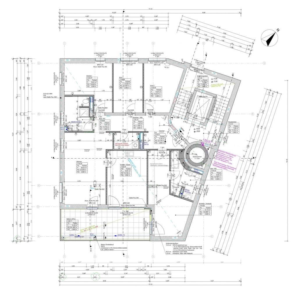
WE 4 im 3. Obergeschoss

LAGE

Die perfekte Lage wird deutlich, wenn man nur einige angrenzende Bereich der Stadt aufzählt, wie ein Steinwurf bis zum Stadtbad, einen Katzensprung bis zum Schloßteich, einen kurzen Spaziergang bis Küchwaldpark mit Tennisplätzen und zugleich erreicht man fußläufig innerhalb von 10 Minuten den Mittelpunkt von Chemnitz, das Rathaus mit Marktplatz.

Sie sehen gerade einen Platzhalterinhalt von Google Maps. Um auf den eigentlichen Inhalt zuzugreifen, klicken Sie auf die Schaltfläche unten. Bitte beachten Sie, dass dabei Daten an Drittanbieter weitergegeben werden.

Mehr Informationen

Kontakt

Projekte Kontaktformular

Ihr Ansprechpartner

René Krauss

Projekt- / Bauberater

Telefon: +49 (0) 371 / 46112 – 112
Telefax: +49 (0) 371 / 46112 – 270

Mobil: +49 (0) 152/020 859 86

E-Mail: krauss@fasa-ag.de

Erreichbar:
Mo – Fr: 9 – 18 Uhr

Beginnen Sie mit der Eingabe und drücken Sie Enter, um zu suchen